Toggle navigation
(+356) 2164 9500
(+356) 9998 6779
info@sensaramalta.com
Head Office - Sensara Malta
Triq Santa Marija, Safi
09.00 to 19.00 hrs
Monday to Saturday
Home
Properties
Sales
Rentals
Foreign
About us
Services
Contacts
Send your request
Previous
Next
267,000 €
CLICK HERE for DETAILED PHOTOS
Tarxien - 3rd Floor 2 Bedroom Apartment - On Plan
2 bedroom apartment for sale • Tarxien
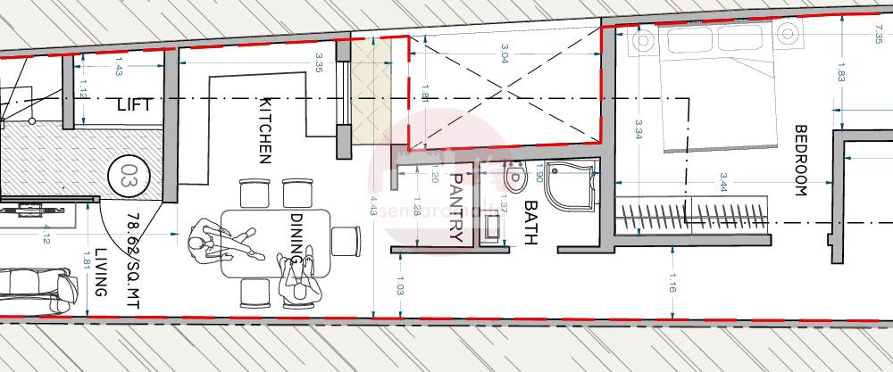
In a small block of only 4 residential units comes this 2 bedroom apartment which is currently on plan and situated in the 3rd floor .
The layout consist of a front longish open plan served with balcony , pantry, small internal balcony, main bathroom, main bedroom served with open ensuit back balcony and a study room which can be used as single bedroom.
The property is being offered finished excluding bathrooms and internal doors.
The protect is prospected to be fully completed by end of 2026
Freehold.
Rooms and Features
Code
V024129
Locality
Tarxien
Property type
2 bedroom apartment
Price
267,000 €
Locals
1
Bedrooms
2
Bathrooms
2
Sqm
78.6
Terraces
3
Floor
3
Energetic class
Nondescript
Property Conditions
Next Realization
Accessories:
Double Glazing
Photos • Floorplans • Video
Photos
Options
Print Property sheet
Send property sheet by mail
Schedule a visit
RealEstate Brokers
Schembri Maria Pawla
+356 7732 8183
+356 9998 6779
+356 9998 6775
pawla@sensaramalta.com
Information request
Name *
Phone *
E-mail *
Request Details *
I authorize the processing of my personal data according Regolamento UE n. 679/2016 -
Privacy Policy
I authorize the processing of data for marketing purposes, promotional activities, commercial offers and market surveys.
Send
Share on
We also recommend
for Sale
Rabat - 1st Floor 2 Bedroom Finished Apartment + Terrace + Balconies
355,000 €
for Sale
Santa Lucia Gozo - 2 Bedroom Apartment/ open views
195,000 €
for Sale
Zabbar - 2 Bedroom Apartment - Ready Built - Finished
287,000 €
Keep default settings X
Use of cookies
This site uses cookies. Our (own) cookies and those of our Partners (third party cookies) are used to offer you a unique experience with us. For this reason, together with our partners, we collect and process non-sensitive information (such as the identifier of your device or the pages you visit).
At any time you can delete, modify or verify the information you share in
Cookie preference
or in our
Cookie Policy
and
Privacy Policy
.
Necessary
Functional
Profiling
Analytics
Accept all
Decline all
Accept selected
Cookie preference