Toggle navigation
(+356) 2164 9500
(+356) 9998 6779
info@sensaramalta.com
Head Office - Sensara Malta
Triq Santa Marija, Safi
09.00 to 19.00 hrs
Monday to Saturday
Home
Properties
Sales
Rentals
Foreign
About us
Services
Contacts
Send your request
Previous
Next
250,000 €
CLICK HERE for DETAILED PHOTOS
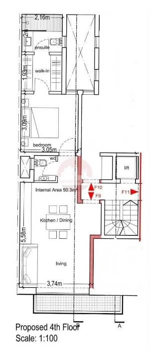
San Gwann - Already Built 1 Bedroom 2nd Floor Finished Apartment
1 bedroom apartment for sale • San Gwann
Located on the second floor in San Gwann, a one-bedroom finished apartment, currently under construction.
The layout comprises of an open-plan kitchen/dining/living with a front terrace, main bathroom, and a double bedroom that is complemented by a walk-in wardrobe, an ensuite bathroom, and a balcony. This property is served with a lift and is freehold.
It is being offered finished, excluding bathrooms and internal doors, and is estimated to be completed at the beginning of 2027.
Rooms and Features
Code
V024163
Locality
San Gwann
Property type
1 bedroom apartment
Price
250,000 €
Locals
1
Bedrooms
1
Bathrooms
2
Sqm
50
Balconies
1
Terraces
1
Floor
2
Energetic class
Nondescript
Property Conditions
New
Accessories:
Double Glazing
Photos • Floorplans • Video
Photos
Options
Print Property sheet
Send property sheet by mail
Schedule a visit
RealEstate Brokers
Schembri Maria Pawla
+356 7732 8183
+356 9998 6779
+356 9998 6775
pawla@sensaramalta.com
Information request
Name *
Phone *
E-mail *
Request Details *
I authorize the processing of my personal data according Regolamento UE n. 679/2016 -
Privacy Policy
I authorize the processing of data for marketing purposes, promotional activities, commercial offers and market surveys.
Send
Share on
We also recommend
for Sale
St Pauls Bay - 2 Bedroom Apartment Highly Finished
358,500 €
for Sale
Msida - 1 Bedroom Ground Floor Apartment On Plan
280,000 €
for Sale
Paola - Shell Form 1 Bedroom Apartment
185,000 €
Keep default settings X
Use of cookies
This site uses cookies. Our (own) cookies and those of our Partners (third party cookies) are used to offer you a unique experience with us. For this reason, together with our partners, we collect and process non-sensitive information (such as the identifier of your device or the pages you visit).
At any time you can delete, modify or verify the information you share in
Cookie preference
or in our
Cookie Policy
and
Privacy Policy
.
Necessary
Functional
Profiling
Analytics
Accept all
Decline all
Accept selected
Cookie preference