Toggle navigation
(+356) 2164 9500
(+356) 9998 6779
info@sensaramalta.com
Head Office - Sensara Malta
Triq Santa Marija, Safi
09.00 to 19.00 hrs
Monday to Saturday
Home
Properties
Sales
Rentals
Foreign
About us
Services
Contacts
Send your request
Previous
Next
297,000 €
CLICK HERE for DETAILED PHOTOS
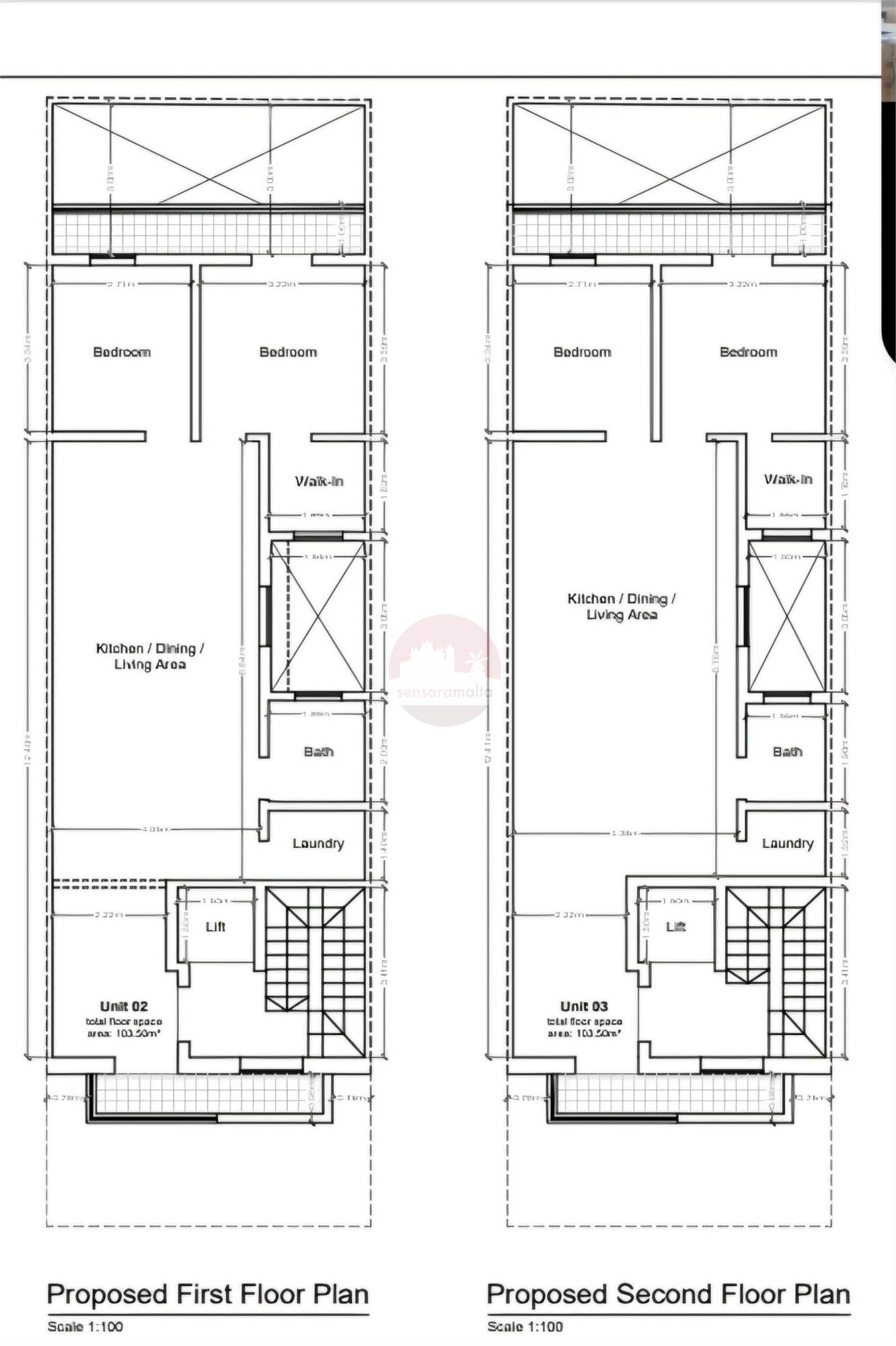
Haz- Zebbug- On plan 2 Bedroom Apartment blk of only 4
2 bedroom apartment for sale • Zebbug
Second Floor Level comes this On plan 2 bedroom Apartment located in a quiet area of Haz- Zebbug. Offered in Shell form with common parts Finished and served with a Lift. Block of only 4 .
The apartment offers a comfortable layout with an open plan Kitchen/Living/Dining with front balcony, laundry room, main bathroom, 2 bedrooms one of them with walk in and Back Balcony.
Apartment is being offered advanced shell and is estimate to be completed by end of 2027. Freehold.
Rooms and Features
Code
V024282
Locality
Zebbug
Property type
2 bedroom apartment
Price
297,000 €
Locals
1
Bathrooms
1
Sqm
100
Garages
1
Floor
2
Energetic class
Nondescript
Photos • Floorplans • Video
Photos
Options
Print Property sheet
Send property sheet by mail
Schedule a visit
RealEstate Brokers
Cortis Marika
+356 9925 6579
+356 9998 6779
+356 9998 6775
cortis@sensaramalta.com
Information request
Name *
Phone *
E-mail *
Request Details *
I authorize the processing of my personal data according Regolamento UE n. 679/2016 -
Privacy Policy
I authorize the processing of data for marketing purposes, promotional activities, commercial offers and market surveys.
Send
Share on
We also recommend
for Sale
Luqa - 2 Bed,2 Bath Finished 3rd Flr Apartment
312,000 €
for Sale
Dingli - 3rd Floor 2 Bedroom Apartment - Shell Form
260,000 €
for Sale
Haz- Zebbug- On Plan 2 Bedroom Apartment
307,000 €
Keep default settings X
Use of cookies
This site uses cookies. Our (own) cookies and those of our Partners (third party cookies) are used to offer you a unique experience with us. For this reason, together with our partners, we collect and process non-sensitive information (such as the identifier of your device or the pages you visit).
At any time you can delete, modify or verify the information you share in
Cookie preference
or in our
Cookie Policy
and
Privacy Policy
.
Necessary
Functional
Profiling
Analytics
Accept all
Decline all
Accept selected
Cookie preference