Toggle navigation
(+356) 2164 9500
(+356) 9998 6779
info@sensaramalta.com
Head Office - Sensara Malta
Triq Santa Marija, Safi
09.00 to 19.00 hrs
Monday to Saturday
Home
Properties
Sales
Rentals
Foreign
About us
Services
Contacts
Send your request
Previous
Next
376,500 €
CLICK HERE for DETAILED PHOTOS
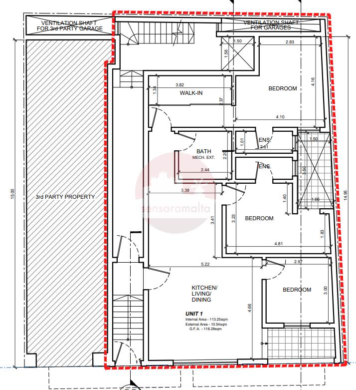
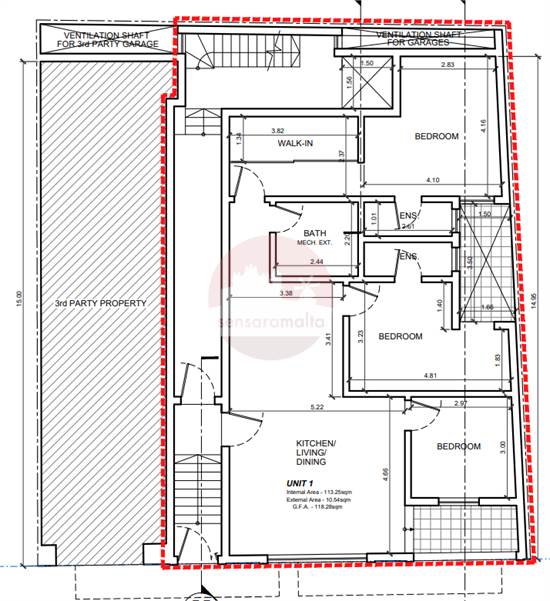
Paola - 3 Bedroom Finished Elevated Maisonette On Plan
Maisonette for sale • Paola
Located in Paola, three-bedroom elevated maisonette, currently available on plan.
The layout comprises of an open plan kitchen/dining/living, main bathroom and three-bedrooms. Two of the bedroom includes an ensuite bathroom the master bedroom includes a walk-in-wardrobe and the third bedroom has a private balcony.
This property is being offered finished excluding bathrooms and internal doors and is estimate to be completed by 2027.
Rooms and Features
Code
V024285
Locality
Paola
Property type
Maisonette
Price
376,500 €
Locals
1
Bedrooms
3
Bathrooms
3
Sqm
118
Balconies
1
Floor
Ground floor
Energetic class
Nondescript
Photos • Floorplans • Video
Photos
Options
Print Property sheet
Send property sheet by mail
Schedule a visit
RealEstate Brokers
Zahra Gaynor
+356 7933 5643
+356 9998 6775
+356 9998 6779
gaynor@sensaramalta.com
Information request
Name *
Phone *
E-mail *
Request Details *
I authorize the processing of my personal data according Regolamento UE n. 679/2016 -
Privacy Policy
I authorize the processing of data for marketing purposes, promotional activities, commercial offers and market surveys.
Send
Share on
We also recommend
for Sale
Zabbar - Large 1st Floor 3 Bedroom Furnished Maisonette + Airspace
560,000 €
for Sale
Kalkara - 137sqm Ground Floor Maisonette + Yard
369,000 €
for Sale
Qormi - 2 Bedroom Ground Floor Finished Maisonette + Optional Garage
338,000 €
Keep default settings X
Use of cookies
This site uses cookies. Our (own) cookies and those of our Partners (third party cookies) are used to offer you a unique experience with us. For this reason, together with our partners, we collect and process non-sensitive information (such as the identifier of your device or the pages you visit).
At any time you can delete, modify or verify the information you share in
Cookie preference
or in our
Cookie Policy
and
Privacy Policy
.
Necessary
Functional
Profiling
Analytics
Accept all
Decline all
Accept selected
Cookie preference