Toggle navigation
(+356) 2164 9500
(+356) 9998 6779
info@sensaramalta.com
Head Office - Sensara Malta
Triq Santa Marija, Safi
09.00 to 19.00 hrs
Monday to Saturday
Home
Properties
Sales
Rentals
Foreign
About us
Services
Contacts
Send your request
Previous
Next
317,500 €
CLICK HERE for DETAILED PHOTOS
Paola - 3 Bedroom 2nd Floor Finished Apartment On Plan
3+ bedroom apartment for sale • Paola
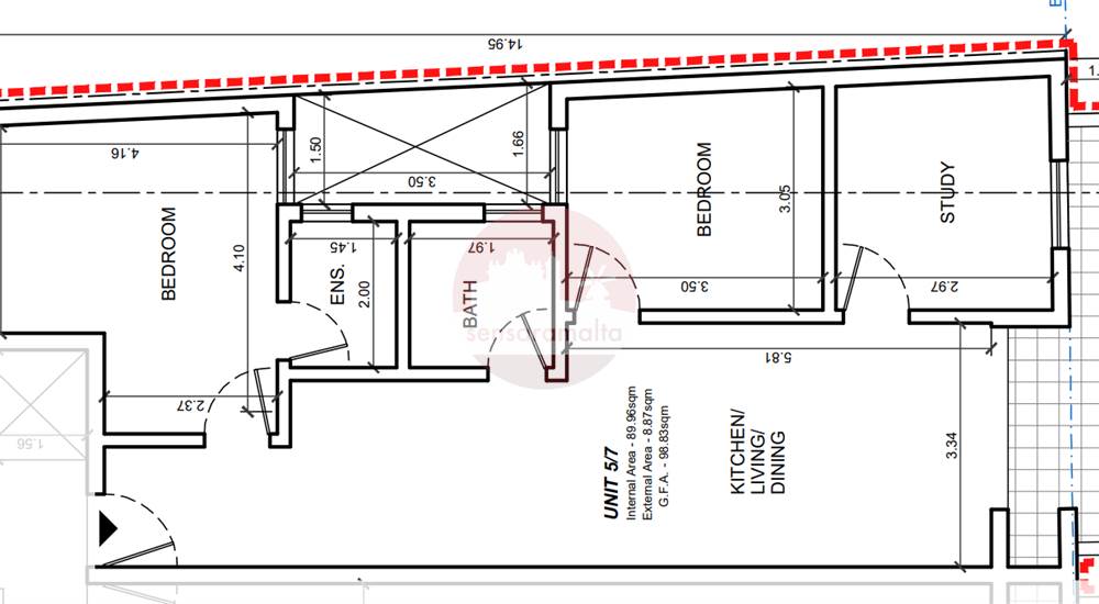
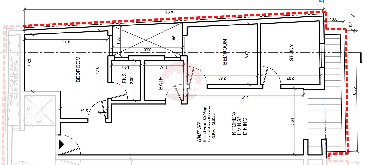
Located on the second floor, three-bedroom finished apartment, currently available on plan in Paola.
The layout comprises of an open plan kitchen/dining/living with a front balcony, main bathroom and three bedroom (two double bedrooms and a spare. The master bedroom includes an ensuite bathroom.
This property is being offered finished excluding bathrooms and internal doors and is estimate to be completed by 2027.
Rooms and Features
Code
V024290
Locality
Paola
Property type
3+ bedroom apartment
Price
317,500 €
Locals
1
Bedrooms
3
Bathrooms
2
Sqm
99
Balconies
1
Floor
2
Energetic class
Nondescript
Photos • Floorplans • Video
Photos
Options
Print Property sheet
Send property sheet by mail
Schedule a visit
RealEstate Brokers
Zahra Gaynor
+356 7933 5643
+356 9998 6775
+356 9998 6779
gaynor@sensaramalta.com
Information request
Name *
Phone *
E-mail *
Request Details *
I authorize the processing of my personal data according Regolamento UE n. 679/2016 -
Privacy Policy
I authorize the processing of data for marketing purposes, promotional activities, commercial offers and market surveys.
Send
Share on
We also recommend
for Sale
Swieqi - 3 Bedroom Apartment On Plan
670,000 €
for Sale
Pieta - 143sqm 3 Bedroom Fully Finished Ground Floor Apartment + Yard - Already Built
355,000 €
for Sale
Birzebbuga - 3 Bedroom Finished 3rd Floor Apartment On Plan
348,000 €
Keep default settings X
Use of cookies
This site uses cookies. Our (own) cookies and those of our Partners (third party cookies) are used to offer you a unique experience with us. For this reason, together with our partners, we collect and process non-sensitive information (such as the identifier of your device or the pages you visit).
At any time you can delete, modify or verify the information you share in
Cookie preference
or in our
Cookie Policy
and
Privacy Policy
.
Necessary
Functional
Profiling
Analytics
Accept all
Decline all
Accept selected
Cookie preference