Toggle navigation
(+356) 2164 9500
(+356) 9998 6779
info@sensaramalta.com
Head Office - Sensara Malta
Triq Santa Marija, Safi
09.00 to 19.00 hrs
Monday to Saturday
Home
Properties
Sales
Rentals
Foreign
About us
Services
Contacts
Send your request
Previous
Next
1,556,000 €
CLICK HERE for DETAILED PHOTOS
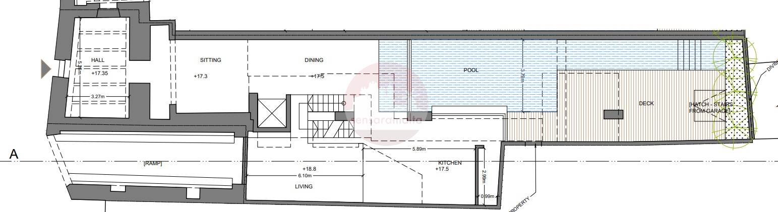
Lija - 3 Bedroom H.O.C + Pool + 5 Car Garage On Plan
House of Character for sale • Lija
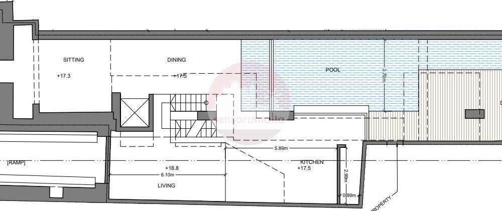
Located in Lija, three-bedroom House of character of circa 330Sqm internal, 150sqm exterior and 160sqm roof area. Currently available on plan.
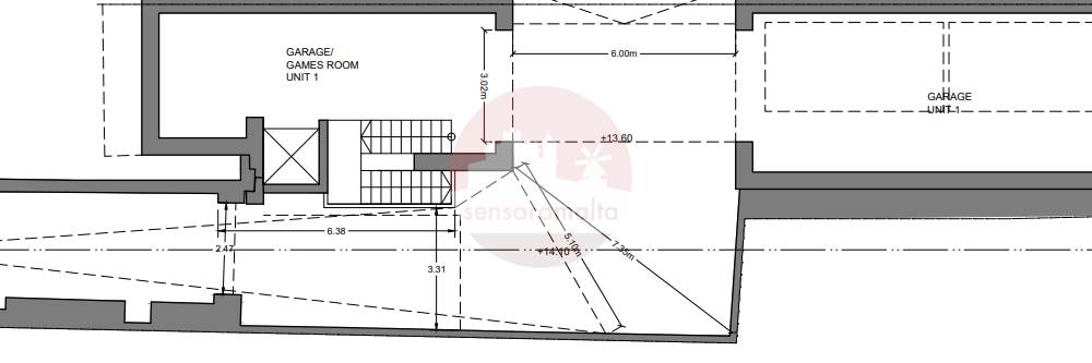
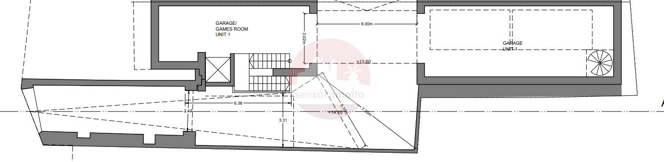
The layout comprises of an interconnected five car garage at the lower level, an open plan kitchen/dining/living followed by a front positioned pool area on the ground floor level. Three double bedrooms all of them with an ensuite bathroom on the first floor.
This property is being offered in shell form and is estimate to be completed by 2027.
Rooms and Features
Code
V024294
Locality
Lija
Property type
House of Character
Price
1,556,000 €
Locals
1
Bedrooms
3
Bathrooms
4
Sqm
600
Energetic class
Nondescript
Photos • Floorplans • Video
Photos
Options
Print Property sheet
Send property sheet by mail
Schedule a visit
RealEstate Brokers
Zahra Gaynor
+356 7933 5643
+356 9998 6775
+356 9998 6779
gaynor@sensaramalta.com
Information request
Name *
Phone *
E-mail *
Request Details *
I authorize the processing of my personal data according Regolamento UE n. 679/2016 -
Privacy Policy
I authorize the processing of data for marketing purposes, promotional activities, commercial offers and market surveys.
Send
Share on
We also recommend
for Sale
Zejtun- Impeccable 2 bedroom House of Character+UCA
870,500 €
for Sale
Naxxar - Converted House Of Character
750,000 €
for Sale
Zurrieq - 4 Bedroom House of Character
727,000 €
Keep default settings X
Use of cookies
This site uses cookies. Our (own) cookies and those of our Partners (third party cookies) are used to offer you a unique experience with us. For this reason, together with our partners, we collect and process non-sensitive information (such as the identifier of your device or the pages you visit).
At any time you can delete, modify or verify the information you share in
Cookie preference
or in our
Cookie Policy
and
Privacy Policy
.
Necessary
Functional
Profiling
Analytics
Accept all
Decline all
Accept selected
Cookie preference