Toggle navigation
(+356) 2164 9500
(+356) 9998 6779
info@sensaramalta.com
Head Office - Sensara Malta
Triq Santa Marija, Safi
09.00 to 19.00 hrs
Monday to Saturday
Home
Properties
Sales
Rentals
Foreign
About us
Services
Contacts
Send your request
Previous
Next
527,000 €
CLICK HERE for DETAILED PHOTOS
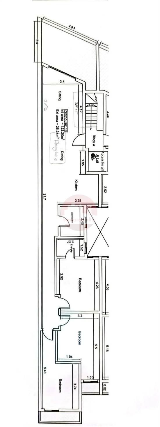
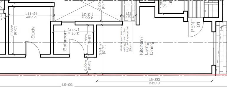
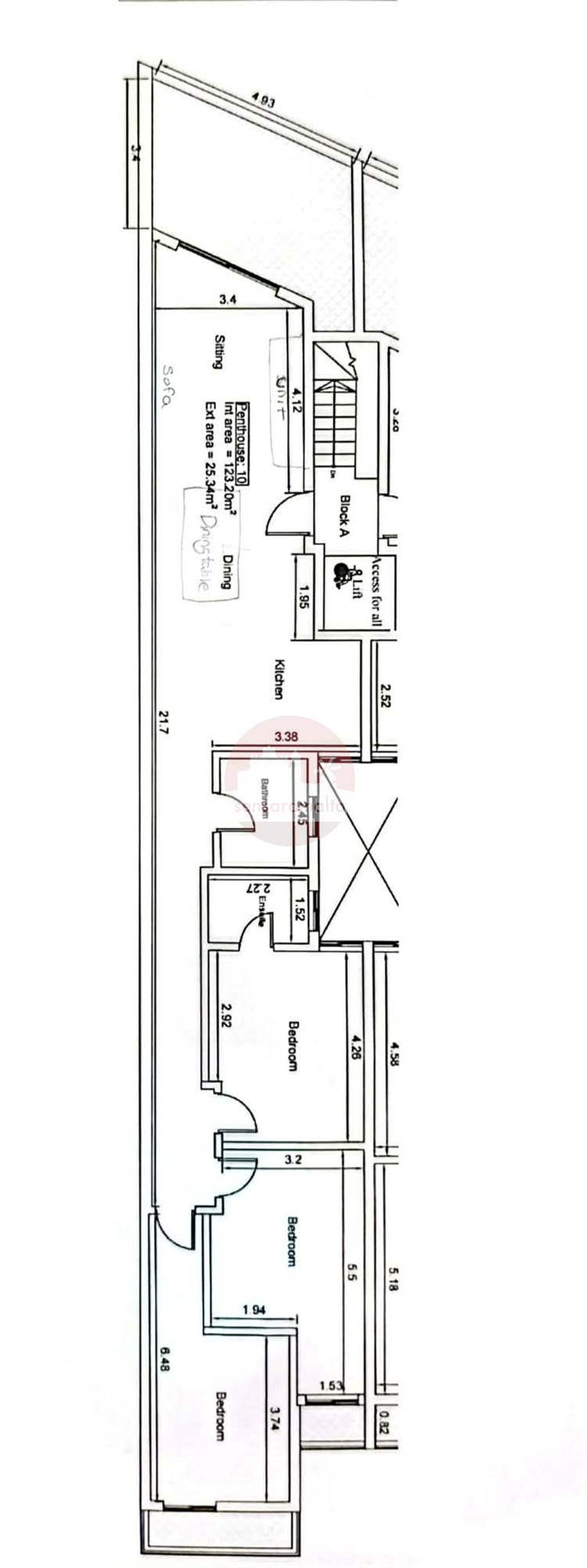
Zebbug - 3 Bedroom Finished Penthouse + Airspace + Optional Garage
Penthouse for sale • Zebbug
Located in a quiet area in Zebbug, Three-bedroom finished penthouse with it's own airspace, now available on the market.
The layout comprises of an open plan kitchen/dining/living with a front terrace, main bathroom and three-bedrooms. The master bedroom includes an ensuite bathroom and the other two-bedrooms are connected to a private balcony.
This property is being offered finished including bathrooms and gypsum ceilings. An optional two car garage is available at an extra price of 72k.
Rooms and Features
Code
V024375
Locality
Zebbug
Property type
Penthouse
Price
527,000 €
Locals
1
Bedrooms
3
Bathrooms
2
Sqm
148
Balconies
2
Terraces
1
Floor
4
Energetic class
Nondescript
Photos • Floorplans • Video
Photos
Options
Print Property sheet
Send property sheet by mail
Schedule a visit
RealEstate Brokers
Hughes Jeffrey
+356 9980 0004
+356 9998 6779
+356 9998 6775
hughes@sensaramalta.com
Information request
Name *
Phone *
E-mail *
Request Details *
I authorize the processing of my personal data according Regolamento UE n. 679/2016 -
Privacy Policy
I authorize the processing of data for marketing purposes, promotional activities, commercial offers and market surveys.
Send
Share on
We also recommend
for Sale
Msida - 2 Bedroom 6th Floor Finished Penthouse On Plan
395,000 €
for Sale
Zurrieq- 3 Double Bedrooms Furnished Penthouse+ Opt Garage
575,000 €
for Sale
Santa Venera - 3 Bedroom Penthouse + Airspace
410,000 €
Keep default settings X
Use of cookies
This site uses cookies. Our (own) cookies and those of our Partners (third party cookies) are used to offer you a unique experience with us. For this reason, together with our partners, we collect and process non-sensitive information (such as the identifier of your device or the pages you visit).
At any time you can delete, modify or verify the information you share in
Cookie preference
or in our
Cookie Policy
and
Privacy Policy
.
Necessary
Functional
Profiling
Analytics
Accept all
Decline all
Accept selected
Cookie preference