Toggle navigation
(+356) 2164 9500
(+356) 9998 6779
info@sensaramalta.com
Head Office - Sensara Malta
Triq Santa Marija, Safi
09.00 to 19.00 hrs
Monday to Saturday
Home
Properties
Sales
Rentals
Foreign
About us
Services
Contacts
Send your request
Previous
Next
340,000 €
CLICK HERE for DETAILED PHOTOS
Zabbar - Corner 2 Double Bedroom Highly Finished Elevated Ground Floor Apartment
2 bedroom apartment for sale • Zabbar
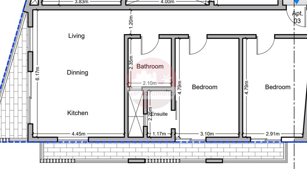
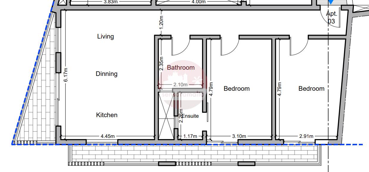
In the heart of Zabbar lies this circa 100 sqm elevated ground floor apartment, which is being offered fully finished, including bathrooms and internal doors.
The block consists of a basement and street-level garages, an office, 12 apartments, and 2 penthouses.
The total project is estimated to be fully built and it is due to be fully completed by the end of 2026.
This property layout comprises of 2 double bedrooms (master with ensuite) both served with a longish balcony and a main bathroom bathroom, and a squarish open plan served with a front terrace .
Optional garages or car spaces are available starting from 45.000 Euros.
The block is fully built and is scheduled to be fully completed by end of 2026.
Freehold.
Rooms and Features
Code
V024441
Locality
Zabbar
Property type
2 bedroom apartment
Price
340,000 €
Locals
1
Bedrooms
2
Bathrooms
2
Sqm
107.6
Terraces
2
sqm Terrace
19.4
Floor
1
Energetic class
Not applicable
Property Conditions
New
Accessories:
Double Glazing, Veranda
Photos • Floorplans • Video
Photos
Options
Print Property sheet
Send property sheet by mail
Schedule a visit
RealEstate Brokers
Schembri Maria Pawla
+356 7732 8183
+356 9998 6779
+356 9998 6775
pawla@sensaramalta.com
Information request
Name *
Phone *
E-mail *
Request Details *
I authorize the processing of my personal data according Regolamento UE n. 679/2016 -
Privacy Policy
I authorize the processing of data for marketing purposes, promotional activities, commercial offers and market surveys.
Send
Share on
We also recommend
for Sale
Fgura - 2 Bedroom Apartment On Plan
262,000 €
for Sale
Zabbar, Highly Fully finished 2 double bedrooms elevated ground floor Apartment
280,000 €
for Sale
Rabat - 2 Bed Finished Luxurious Duplex Apartment + Private Pool + Terrace + Views
1,950,000 €
Keep default settings X
Use of cookies
This site uses cookies. Our (own) cookies and those of our Partners (third party cookies) are used to offer you a unique experience with us. For this reason, together with our partners, we collect and process non-sensitive information (such as the identifier of your device or the pages you visit).
At any time you can delete, modify or verify the information you share in
Cookie preference
or in our
Cookie Policy
and
Privacy Policy
.
Necessary
Functional
Profiling
Analytics
Accept all
Decline all
Accept selected
Cookie preference