Toggle navigation
(+356) 2164 9500
(+356) 9998 6779
info@sensaramalta.com
Head Office - Sensara Malta
Triq Santa Marija, Safi
09.00 to 19.00 hrs
Monday to Saturday
Home
Properties
Sales
Rentals
Foreign
About us
Services
Contacts
Send your request
Previous
Next
399,000 €
CLICK HERE for DETAILED PHOTOS
Qrendi - 2 Bedroom Elevated Finished Maisonette On Plan
Maisonette for sale • Qrendi
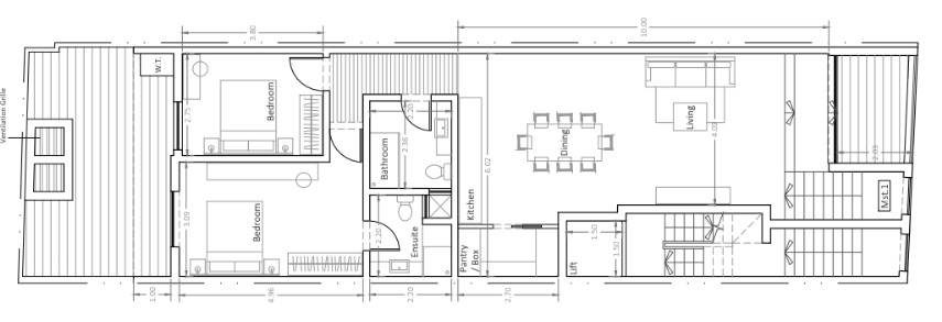
Situated in the tranquil village of Qrendi, two-bedroom elevated maisonette, currently available on plan.
The layout comprises of a spacious open plan kitchen/dining/living with a pantry upon entering, main bathroom and two double bedrooms. Both bedrooms are connected to the backyard, the master bedroom is complemented by an ensuite bathroom.
This property is being offered highly finished excluding bathrooms and internal doors and is estimate to be completed by 2027. Optional garages are available, starting from 87k.
Rooms and Features
Code
V024442
Locality
Qrendi
Property type
Maisonette
Price
399,000 €
Locals
1
Bedrooms
2
Bathrooms
2
Sqm
138
Floor
Ground floor
Energetic class
Nondescript
Photos • Floorplans • Video
Photos
Options
Print Property sheet
Send property sheet by mail
Schedule a visit
RealEstate Brokers
Sensara Jessica
+356 7939 4933
jessica@sensaramalta.com
Information request
Name *
Phone *
E-mail *
Request Details *
I authorize the processing of my personal data according Regolamento UE n. 679/2016 -
Privacy Policy
I authorize the processing of data for marketing purposes, promotional activities, commercial offers and market surveys.
Send
Share on
We also recommend
for Sale
Fgura - 3 Bedroom Finished Elevated Maisonette On Plan
390,000 €
for Sale
Pieta - Elevated 3 Bedroom Finished Maisonette On Plan
322,500 €
for Sale
Safi - 2 Bedroom Elevated Maisonette in Shell Form Ready built
328,000 €
Keep default settings X
Use of cookies
This site uses cookies. Our (own) cookies and those of our Partners (third party cookies) are used to offer you a unique experience with us. For this reason, together with our partners, we collect and process non-sensitive information (such as the identifier of your device or the pages you visit).
At any time you can delete, modify or verify the information you share in
Cookie preference
or in our
Cookie Policy
and
Privacy Policy
.
Necessary
Functional
Profiling
Analytics
Accept all
Decline all
Accept selected
Cookie preference