Toggle navigation
(+356) 2164 9500
(+356) 9998 6779
info@sensaramalta.com
Head Office - Sensara Malta
Triq Santa Marija, Safi
09.00 to 19.00 hrs
Monday to Saturday
Home
Properties
Sales
Rentals
Foreign
About us
Services
Contacts
Send your request
Previous
Next
482,500 €
CLICK HERE for DETAILED PHOTOS
B'Kara - 3 bedroom Penthouse with two terraces in Shell form
Penthouse for sale • Birkirkara
Further reduction in price guaranteed for Sensara Malta Clients!
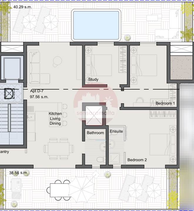
Located in B'Kara, this 4th floor penthouse is larger than usual, measuring approximately 176 sqm, with terraces on both ends of the property making it ideal for relaxing and hosting!
The layout comprises a welcoming entrance open plan KLD with immediate access to both of the terraces, main bathroom, two bedrooms, main with ensuite and a study. All bedrooms have access to the front/back terraces as well.
Optional garages starting from 42K
It is being sold in Shell form with common parts ready finished.
Freehold.
Rooms and Features
Code
V024451
Locality
Birkirkara
Property type
Penthouse
Price
482,500 €
Locals
1
Bedrooms
3
Bathrooms
2
Sqm
176
Terraces
2
Energetic class
Not applicable
Photos • Floorplans • Video
Photos
Options
Print Property sheet
Send property sheet by mail
Schedule a visit
RealEstate Brokers
Aguis Lorna
+356 9961 6121
+356 9998 6779
+356 2164 9500
lorna@sensaramalta.com
Information request
Name *
Phone *
E-mail *
Request Details *
I authorize the processing of my personal data according Regolamento UE n. 679/2016 -
Privacy Policy
I authorize the processing of data for marketing purposes, promotional activities, commercial offers and market surveys.
Send
Share on
We also recommend
for Sale
Rabat - 3 Bedroom Finished Luxurious Penthouse + Pool + Terrace + Views
1,250,000 €
for Sale
Kercem Gozo - 2 Bedroom Penthouse + Airspace
267,000 €
for Sale
Mellieha - 3 Bedroom Penthouse + Views- Finished
999,000 €
Keep default settings X
Use of cookies
This site uses cookies. Our (own) cookies and those of our Partners (third party cookies) are used to offer you a unique experience with us. For this reason, together with our partners, we collect and process non-sensitive information (such as the identifier of your device or the pages you visit).
At any time you can delete, modify or verify the information you share in
Cookie preference
or in our
Cookie Policy
and
Privacy Policy
.
Necessary
Functional
Profiling
Analytics
Accept all
Decline all
Accept selected
Cookie preference