Toggle navigation
(+356) 2164 9500
(+356) 9998 6779
info@sensaramalta.com
Head Office - Sensara Malta
Triq Santa Marija, Safi
09.00 to 19.00 hrs
Monday to Saturday
Home
Properties
Sales
Rentals
Foreign
About us
Services
Contacts
Send your request
Previous
Next
265,000 €
CLICK HERE for DETAILED PHOTOS
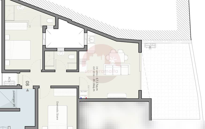
Marsa - 2 bedroom Penthouse with Terrace in Shell form
Penthouse for sale • Marsa
A New Project of development in Marsa, estimated to be completed in Shell Form with common parts finished by end of June 2028.
A 3rd floor penthouse consisting of an open plan kitchen/living/dining overlooking a front terrace, main bathroom, main bedroom with ensuite and a domestic store that can easily be used as another bedroom.
Freehold
Rooms and Features
Code
V024562
Locality
Marsa
Property type
Penthouse
Price
265,000 €
Locals
1
Bedrooms
2
Bathrooms
2
Sqm
91
Terraces
1
Energetic class
Not applicable
Photos • Floorplans • Video
Photos
Options
Print Property sheet
Send property sheet by mail
Schedule a visit
RealEstate Brokers
Aguis Lorna
+356 9961 6121
+356 9998 6779
+356 2164 9500
lorna@sensaramalta.com
Information request
Name *
Phone *
E-mail *
Request Details *
I authorize the processing of my personal data according Regolamento UE n. 679/2016 -
Privacy Policy
I authorize the processing of data for marketing purposes, promotional activities, commercial offers and market surveys.
Send
Share on
We also recommend
for Sale
Balzan - 185sqm 3 Bedroom Finished Penthouse
583,500 €
for Sale
Fgura - 1 Bedroom Finished Penthouse On Plan
270,000 €
for Sale
Paola - On Plan Shell 1 Bedroom Penthouse
203,000 €
Keep default settings X
Use of cookies
This site uses cookies. Our (own) cookies and those of our Partners (third party cookies) are used to offer you a unique experience with us. For this reason, together with our partners, we collect and process non-sensitive information (such as the identifier of your device or the pages you visit).
At any time you can delete, modify or verify the information you share in
Cookie preference
or in our
Cookie Policy
and
Privacy Policy
.
Necessary
Functional
Profiling
Analytics
Accept all
Decline all
Accept selected
Cookie preference