Toggle navigation
(+356) 2164 9500
(+356) 9998 6779
info@sensaramalta.com
Head Office - Sensara Malta
Triq Santa Marija, Safi
09.00 to 19.00 hrs
Monday to Saturday
Home
Properties
Sales
Rentals
Foreign
About us
Services
Contacts
Send your request
Previous
Next
389,000 €
CLICK HERE for DETAILED PHOTOS
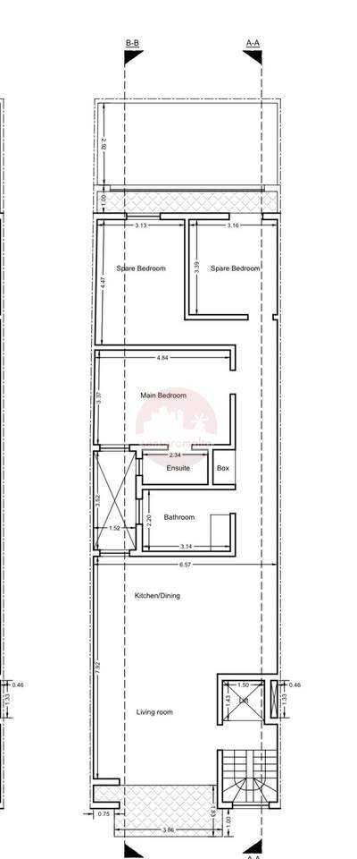
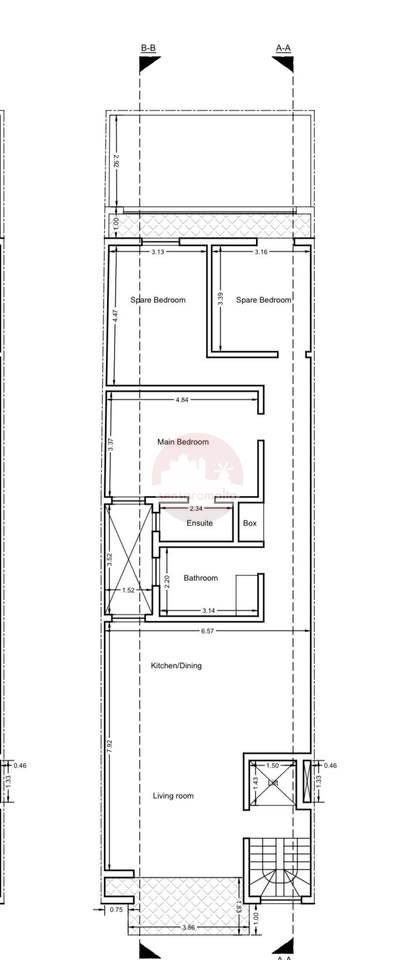
Pieta - 120sqm 3 Bedroom Finished Apartment
3+ bedroom apartment for sale • Pieta
On plan, forming part of a smart block o just 6 units, situated on the 3rd floor comes this spacious 3 bedroom apartment, being offered finished, including bathrooms, excluding internal doors.
Property consists of a spacious open plan, kitchen/living/dining area leading to a good size balcony on facade, and a corridor leading to a main bathroom, box room/storage, 3 bedrooms, main with en-suite bathroom and a back longish balcony.
Freehold
Rooms and Features
Code
V024625
Locality
Pieta
Property type
3+ bedroom apartment
Price
389,000 €
Locals
1
Bedrooms
3
Bathrooms
2
Sqm
120
Balconies
1
Floor
3
Energetic class
Not applicable
Property Conditions
New
Photos • Floorplans • Video
Photos
Options
Print Property sheet
Send property sheet by mail
Schedule a visit
RealEstate Brokers
Schembri Josianne
+356 7782 4222
+356 9998 6779
+356 9998 6775
josianne@sensaramalta.com
Information request
Name *
Phone *
E-mail *
Request Details *
I authorize the processing of my personal data according Regolamento UE n. 679/2016 -
Privacy Policy
I authorize the processing of data for marketing purposes, promotional activities, commercial offers and market surveys.
Send
Share on
We also recommend
for Sale
Birzebbugia - 3 Bedroom Apartment
302,500 €
for Sale
Paola - Larger than usual corner apartment in shell form with 67sqm of outdoor space
300,000 €
for Sale
Qormi - 3 Bedroom Apartment On Plan
300,000 €
Keep default settings X
Use of cookies
This site uses cookies. Our (own) cookies and those of our Partners (third party cookies) are used to offer you a unique experience with us. For this reason, together with our partners, we collect and process non-sensitive information (such as the identifier of your device or the pages you visit).
At any time you can delete, modify or verify the information you share in
Cookie preference
or in our
Cookie Policy
and
Privacy Policy
.
Necessary
Functional
Profiling
Analytics
Accept all
Decline all
Accept selected
Cookie preference