Toggle navigation
(+356) 2164 9500
(+356) 9998 6779
info@sensaramalta.com
Head Office - Sensara Malta
Triq Santa Marija, Safi
09.00 to 19.00 hrs
Monday to Saturday
Home
Properties
Sales
Rentals
Foreign
About us
Services
Contacts
Send your request
Previous
Next
410,000 €
CLICK HERE for DETAILED PHOTOS
Qormi - 3 Bedroom Maisonette + Half Ownership of Roof
Maisonette for sale • Qormi
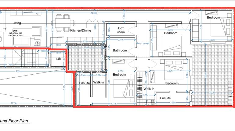
Situated in San Gorg area comes this corner first floor maisonette overlying just another maisonette.
Property consists of a marble staircase leading to the first floor level where one finds a living area, separate kitchen and a corridor leading to the main bathroom, 2 double bedrooms, main with en- suite and a single bedroom.
Complementing this property is a washroom and half ownership of roof.
1/2 car garage measuring approx 20ft / 8.5ft also included in the price
Rooms and Features
Code
V014657
Locality
Qormi
Property type
Maisonette
Price
410,000 €
Locals
1
Bedrooms
3
Bathrooms
2
Sqm
100
Garages
1
Balconies
2
Terraces
1
Floor
1
Energetic class
Nondescript
Property Conditions
New
Photos • Floorplans • Video
Photos
Options
Print Property sheet
Send property sheet by mail
Schedule a visit
RealEstate Brokers
Aguis Lorna
+356 9961 6121
+356 9998 6779
+356 2164 9500
lorna@sensaramalta.com
Information request
Name *
Phone *
E-mail *
Request Details *
I authorize the processing of my personal data according Regolamento UE n. 679/2016 -
Privacy Policy
I authorize the processing of data for marketing purposes, promotional activities, commercial offers and market surveys.
Send
Share on
We also recommend
for Sale
Zabbar - 4 Bedroom GF Maisonette Finished - On Plan
425,000 €
for Sale
M'scala - 1st Floor Maisonette + Roof + Views
410,000 €
for Sale
San Gwann - Circa 160sqm 3 Bedroom Elevated Fully Finished Maisonette + Large Yard
450,000 €
Keep default settings X
Use of cookies
This site uses cookies. Our (own) cookies and those of our Partners (third party cookies) are used to offer you a unique experience with us. For this reason, together with our partners, we collect and process non-sensitive information (such as the identifier of your device or the pages you visit).
At any time you can delete, modify or verify the information you share in
Cookie preference
or in our
Cookie Policy
and
Privacy Policy
.
Necessary
Functional
Profiling
Analytics
Accept all
Decline all
Accept selected
Cookie preference