Toggle navigation
(+356) 2164 9500
(+356) 9998 6779
info@sensaramalta.com
Head Office - Sensara Malta
Triq Santa Marija, Safi
09.00 to 19.00 hrs
Monday to Saturday
Home
Properties
Sales
Rentals
Foreign
About us
Services
Contacts
Send your request
Previous
Next
600,000 €
CLICK HERE for DETAILED PHOTOS
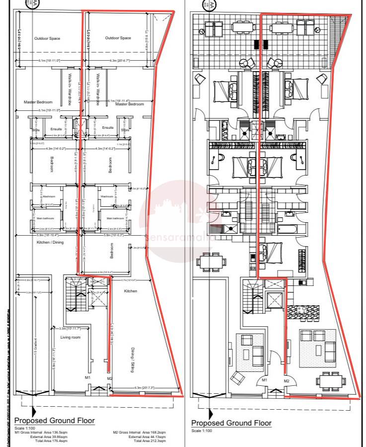
Luqa - 3 Bedroom Maisonette + Yard
Maisonette for sale • Luqa
FURTHER REDUCTION IN PRICE FOR SENSARA MALTA CLIENTS
In a New Development, comes this three bedroom maisonette at ground floor level . Layout consists open plan upon entrance , first box room, main bathroom , 3 double bedrooms of which main is served with ensuit and walk in . A well size back yard .
the maisonette has a circa of 220 sqm and it is being sold finished excluding internal tiles, bathrooms and internal doors.
Car spaces are available for rent at Eur 1,000 yearly
Viewing highly recommended!
Rooms and Features
Code
V019654
Locality
Luqa
Property type
Maisonette
Price
600,000 €
Locals
1
Bedrooms
3
Bathrooms
2
Sqm
220
Terraces
1
Energetic class
Not applicable
Accessories:
Double Glazing
Photos • Floorplans • Video
Photos
Options
Print Property sheet
Send property sheet by mail
Schedule a visit
RealEstate Brokers
Aguis Lorna
+356 9961 6121
+356 9998 6779
+356 2164 9500
lorna@sensaramalta.com
Information request
Name *
Phone *
E-mail *
Request Details *
I authorize the processing of my personal data according Regolamento UE n. 679/2016 -
Privacy Policy
I authorize the processing of data for marketing purposes, promotional activities, commercial offers and market surveys.
Send
Share on
We also recommend
for Sale
Paola - 3 Bedroom Finished Elevated Maisonette On Plan
376,500 €
for Sale
Santa Venera - Larger Than Usual 2nd Floor 3 Bedroom Maisonette + Full Roof
471,000 €
for Sale
Nadur Gozo - 1 Bedroom + Study Ground Floor Maisonette
180,000 €
Keep default settings X
Use of cookies
This site uses cookies. Our (own) cookies and those of our Partners (third party cookies) are used to offer you a unique experience with us. For this reason, together with our partners, we collect and process non-sensitive information (such as the identifier of your device or the pages you visit).
At any time you can delete, modify or verify the information you share in
Cookie preference
or in our
Cookie Policy
and
Privacy Policy
.
Necessary
Functional
Profiling
Analytics
Accept all
Decline all
Accept selected
Cookie preference