Toggle navigation
(+356) 2164 9500
(+356) 9998 6779
info@sensaramalta.com
Head Office - Sensara Malta
Triq Santa Marija, Safi
09.00 to 19.00 hrs
Monday to Saturday
Home
Properties
Sales
Rentals
Foreign
About us
Services
Contacts
Send your request
Previous
Next
330,000 €
CLICK HERE for DETAILED PHOTOS
Xghajra - 2 Bedroom Finished Penthouse + Airspace
Penthouse for sale • Xghajra
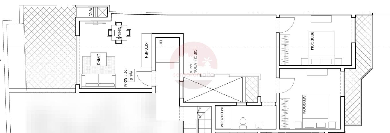
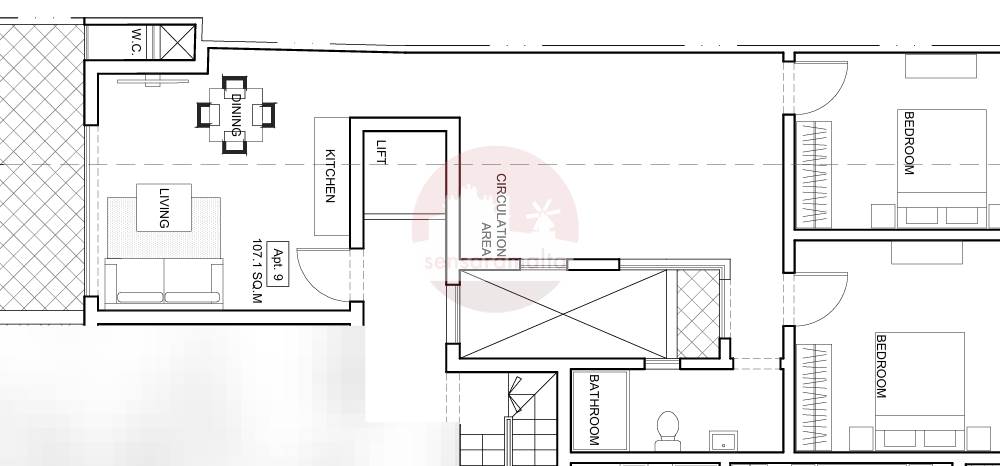
Two-bedroom penthouse in Xgħajra is now available on plan, with completion expected by 2026. This property features two spacious bedrooms, an open-plan kitchen, living, and dining area, a large front terrace ideal for outdoor entertaining, and a second back terrace for added natural light and full ownership of roof and airspace.
It is being sold finished, excluding bathrooms and doors, giving buyers the opportunity to personalize the final touches.
Situated in a quiet residential area close to the seafront and Smart City, this penthouse is an excellent choice for first-time buyers, downsizers, or investors looking for a stylish home in a serene yet well-connected location.
Rooms and Features
Code
V021972
Locality
Xghajra
Property type
Penthouse
Price
330,000 €
Locals
1
Bedrooms
2
Bathrooms
1
Sqm
107.1
Terraces
2
Floor
4
Energetic class
Nondescript
Property Conditions
Under Construction
Photos • Floorplans • Video
Photos
Options
Print Property sheet
Send property sheet by mail
Schedule a visit
RealEstate Brokers
Schembri Maria Pawla
+356 7732 8183
+356 9998 6779
+356 9998 6775
pawla@sensaramalta.com
Information request
Name *
Phone *
E-mail *
Request Details *
I authorize the processing of my personal data according Regolamento UE n. 679/2016 -
Privacy Policy
I authorize the processing of data for marketing purposes, promotional activities, commercial offers and market surveys.
Send
Share on
We also recommend
for Sale
Swieqi - 3 Bedroom Penthouse With Pool
875,000 €
for Sale
San Pawl il- Bahar - Duplex 2 Bedroom Finished Penthouse + Side Sea Views
358,500 €
for Sale
Mosta - 1 Double Bedroom Penthouse + Pool Ready Built
500,000 €
Keep default settings X
Use of cookies
This site uses cookies. Our (own) cookies and those of our Partners (third party cookies) are used to offer you a unique experience with us. For this reason, together with our partners, we collect and process non-sensitive information (such as the identifier of your device or the pages you visit).
At any time you can delete, modify or verify the information you share in
Cookie preference
or in our
Cookie Policy
and
Privacy Policy
.
Necessary
Functional
Profiling
Analytics
Accept all
Decline all
Accept selected
Cookie preference