Toggle navigation
(+356) 2164 9500
(+356) 9998 6779
info@sensaramalta.com
Head Office - Sensara Malta
Triq Santa Marija, Safi
09.00 to 19.00 hrs
Monday to Saturday
Home
Properties
Sales
Rentals
Foreign
About us
Services
Contacts
Send your request
Previous
Next
474,000 €
CLICK HERE for DETAILED PHOTOS
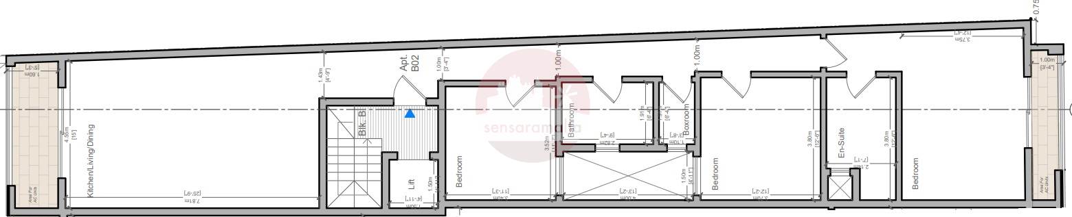
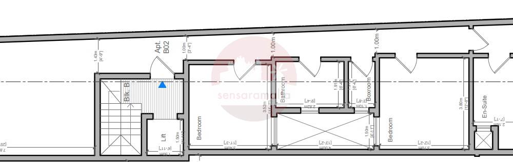
Lija - 3 Bedroom 3rd Floor Finished Apartment On Plan
3+ bedroom apartment for sale • Lija
Located on the third floor in a brand-new project in Lija, a three-bedroom apartment is currently available on plan.
The layout comprises an open-plan kitchen/dining/living with a front balcony, a main bathroom, a box room, and three double bedrooms. The master bedroom includes an ensuite bathroom.
This property is being offered fully finished, including bathrooms and internal doors, and is estimated to be completed by 2028.
Optional Garages
Rooms and Features
Code
V024515
Locality
Lija
Property type
3+ bedroom apartment
Price
474,000 €
Locals
1
Bedrooms
3
Bathrooms
2
Sqm
150
Balconies
2
Floor
3
Energetic class
Nondescript
Photos • Floorplans • Video
Photos
Options
Print Property sheet
Send property sheet by mail
Schedule a visit
RealEstate Brokers
Hughes Jeffrey
+356 9980 0004
+356 9998 6779
+356 9998 6775
hughes@sensaramalta.com
Information request
Name *
Phone *
E-mail *
Request Details *
I authorize the processing of my personal data according Regolamento UE n. 679/2016 -
Privacy Policy
I authorize the processing of data for marketing purposes, promotional activities, commercial offers and market surveys.
Send
Share on
We also recommend
for Sale
B'Kara - Larger than usual 3 bedroom apartment in Shell form
522,500 €
for Sale
Qormi - Larger than usual 3 bedroom Corner Apartment Ready Finished
440,000 €
for Sale
Fgura - Squarish 3 Bedroom Apartment - On Plan
271,500 €
Keep default settings X
Use of cookies
This site uses cookies. Our (own) cookies and those of our Partners (third party cookies) are used to offer you a unique experience with us. For this reason, together with our partners, we collect and process non-sensitive information (such as the identifier of your device or the pages you visit).
At any time you can delete, modify or verify the information you share in
Cookie preference
or in our
Cookie Policy
and
Privacy Policy
.
Necessary
Functional
Profiling
Analytics
Accept all
Decline all
Accept selected
Cookie preference