Toggle navigation
(+356) 2164 9500
(+356) 9998 6779
info@sensaramalta.com
Head Office - Sensara Malta
Triq Santa Marija, Safi
09.00 to 19.00 hrs
Monday to Saturday
Home
Properties
Sales
Rentals
Foreign
About us
Services
Contacts
Send your request
Previous
Next
270,000 €
CLICK HERE for DETAILED PHOTOS
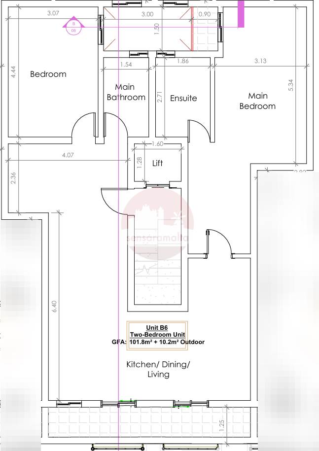
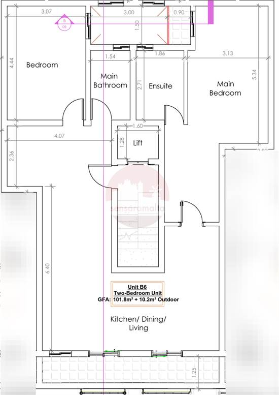
Paola - 2 Bedroom Apartment Shell Form
2 bedroom apartment for sale • Paola
A New Project of development in the UCA of Paola. Estimated to be completed in Shell Form with common parts finished by end of year 2026.
A third floor apartment consisting of an open plan kitchen/living/dining overlooking a front balcony, main bathroom, main bedroom with ensuite and balcony and a second bedroom.
Freehold
Rooms and Features
Code
V024542
Locality
Paola
Property type
2 bedroom apartment
Price
270,000 €
Locals
1
Bedrooms
2
Bathrooms
2
Sqm
112
Balconies
2
Floor
3
Energetic class
Not applicable
Photos • Floorplans • Video
Photos
Options
Print Property sheet
Send property sheet by mail
Schedule a visit
RealEstate Brokers
Aguis Lorna
+356 9961 6121
+356 9998 6779
+356 2164 9500
lorna@sensaramalta.com
Information request
Name *
Phone *
E-mail *
Request Details *
I authorize the processing of my personal data according Regolamento UE n. 679/2016 -
Privacy Policy
I authorize the processing of data for marketing purposes, promotional activities, commercial offers and market surveys.
Send
Share on
We also recommend
for Sale
Qormi - Under Construction 2 Bedroom Apartment - Finished
256,000 €
for Sale
Zabbar - 2 Bedroom Finished Elevated Maisonette On Plan
307,000 €
for Sale
Marsa - 2 bedroom Penthouse with Terrace in Shell form
265,000 €
Keep default settings X
Use of cookies
This site uses cookies. Our (own) cookies and those of our Partners (third party cookies) are used to offer you a unique experience with us. For this reason, together with our partners, we collect and process non-sensitive information (such as the identifier of your device or the pages you visit).
At any time you can delete, modify or verify the information you share in
Cookie preference
or in our
Cookie Policy
and
Privacy Policy
.
Necessary
Functional
Profiling
Analytics
Accept all
Decline all
Accept selected
Cookie preference